DV 25-10 №674

Цена строительства от 6 780 000 ₽* * Стоимость не является окончательной
Заявка на консультацию
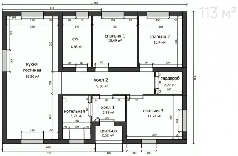
  • Общая площадь 113 м2
  • Длина 12.55 м
  • Ширина 9 м
  • Материал стен Газобетон/пеноблок
  • Количество этажей 1
  • Подвал Нет
  • Мансарда без мансарды
  • Гараж Нет
  • Терраса Нет
  • Проживание Круглогодичное
  • Количество комнат 4
  • Количество спален 3
  • Количество санузлов 1
  • Вид проекта дом
  • Застройщик Домастрой
  • Архитектурный стиль Классический
  • Отделка фасада Штукатурка
  • Крыша Вальмовая
  • Можно купить домокомплект Нет
  • Модульный тип строения Нет
Планировки
Описание проекта

Данный проект дома станет воплощением вашей мечты о собственном уютном и современном жилье. Этот дом — это не просто стены и крыша, это тщательно продуманное пространство, где каждая деталь работает на создание максимального комфорта и удобства для всей вашей семьи.

Акцент сделан на логичном зонировании пространства и максимальной эргономике. Атмосфера, которую стремится создать этот дом — это спокойствие, уют и комфорт. Продуманная планировка позволяет каждому члену семьи найти свое личное пространство, а общие зоны способствуют тесному общению.

Вас может заинтересовать
Вас может заинтересовать

Выбор местоположения

Задать вопрос / написать нам

E-mail: domgis@mail.ru

Мы свяжемся с Вами в течение дня.

Тех. поддержка
Предмет обращения:
Тукущая страница

Мы свяжемся с Вами в течение дня.

Уведомление
Предмет обращения:
Тукущая страница
Обратный звонок
Обратный звонок
Выберите ваш город
Пожаловаться

Объявление опубликовано.
Изменения сохранены

Период публикации - бессрочный, при условии подтверждения актуальности каждые 50 дней. Уведомления будут отправляться на Вашу электронную почту.

Выберите причину снятия с публикации

Снятые с публикации объявления не участвуют в поиске и недоступны для подробного просмотра.

Для повторной публикации нажмите «Вернуть в публикацию»