FLAT №881

Цена строительства от 6 050 000 ₽* * Стоимость не является окончательной
Заявка на консультацию
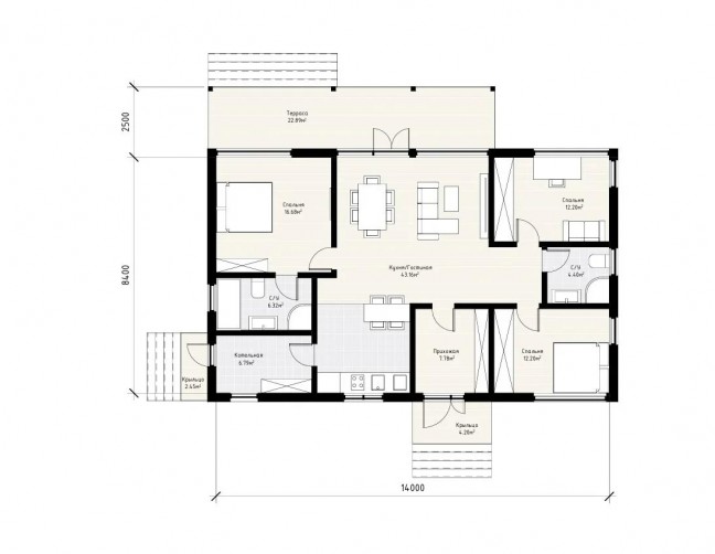
  • Общая площадь 110 м2
  • Длина 14 м
  • Ширина 8.4 м
  • Материал стен Каркас
  • Количество этажей 1
  • Подвал Нет
  • Мансарда без мансарды
  • Гараж Нет
  • Терраса Да
  • Проживание Круглогодичное
  • Количество комнат 4
  • Количество спален 3
  • Количество санузлов 2
  • Вид проекта дом
  • Застройщик RAYTHOUSE
  • Архитектурный стиль Современный
  • Отделка фасада Обшивка деревом
  • Крыша Двускатная
  • Можно купить домокомплект Нет
  • Модульный тип строения Нет
Планировки
Описание проекта

Дом FLAT — это просторный и красивый одноэтажный дом в современном стиле с высокими потолками и панорамным остеклением во всех комнатах.

В доме большая кухня-гостиная, мастер-спальня со своей ванной, две просторные детские, большая прихожая, санузел и отдельное техническое помещение.

Дом идеально подойдет для семьи из 4−6 человек.

Цены указаны за дом на сваях

Варианты комплектаций:

Тёплый контур без фасада - 6 050 000 р.

Тёплый контур с фасадом - 7 205 000 р.

Предчистовая без фасада - 8 360 000  р.

Предчистовая - 9 240 000  р.

Предчистовая + отделка С/У - 9 735 000  р.

Под ключ - 10 945 000 р.

Вас может заинтересовать
Вас может заинтересовать

Выбор местоположения

Задать вопрос / написать нам

E-mail: domgis@mail.ru

Мы свяжемся с Вами в течение дня.

Тех. поддержка
Предмет обращения:
Тукущая страница

Мы свяжемся с Вами в течение дня.

Уведомление
Предмет обращения:
Тукущая страница
Обратный звонок
Обратный звонок
Выберите ваш город
Пожаловаться

Объявление опубликовано.
Изменения сохранены

Период публикации - бессрочный, при условии подтверждения актуальности каждые 50 дней. Уведомления будут отправляться на Вашу электронную почту.

Выберите причину снятия с публикации

Снятые с публикации объявления не участвуют в поиске и недоступны для подробного просмотра.

Для повторной публикации нажмите «Вернуть в публикацию»